top of page
Autocads & extras
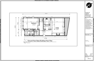
This are projects I've worked on for the past two years, AutoCad drawings and some renderings on Sketch Up as well. I believe knowledge on those programs are very important, as well as learning new ones and keeping up with technology on new creations to give us more tools to create very real renderings.
Residential & Commercial
2020-2021
Rendered in Enscape, and AutoCad
Ground Floor, Building Plans
Residential Pantry Drawings
Capstone Research
Hotel Room
bottom of page
















































